Tervikvarana Osaühingule Linnusemüüri Üüripinnad kuuluvad eluruumid asukohaga Toom-Kooli tn 7, Tallinn
Kinnistusraamatu väljavõttega saab tutvuda pärast oksjonikeskkonda sisse logimist.
Tervikvarana Osaühingule Linnusemüüri Üüripinnad kuuluvad eluruumid asukohaga Toom-Kooli tn 7, Tallinn
OKSJONI ANDMED ID: |
93193 |
alghind oksjonil: |
512 000 € |
tagatisraha: |
5 000 € |
aega alguseni: |
15 p, 23 tundi, 21 minutit |
|
|
registreerimise algus: |
01.10.2025 kl 08:00 |
registreerimise lõpp: |
23.10.2025 kl 12:00 |
oksjoni algus: |
23.10.2025 kl 14:00 |
oksjoni lõpp: |
30.10.2025 kl 14:00 |
pikenemise intervall: |
5 min |
laekumise tähtpäev: |
23.10.2025 kl 12:00 |
|
Ühisvara soetamise korral vaata siia
Ostuhinna tasumise korral krediidiasutuse laenuga vaata siia
Vastuväidete esitamiseks vaata siia
Ostuhinna tasumise tähtaja pikendamise korral vaata siia
Enampakkumist reguleerivad õigusnormid ja korraldaja selgitused
Ametlik enampakkumise teade
Avaldamise algus: 01.10.2025
Avaldamise lõpp: täitemenetluse lõppemiseni või müügikuulutuse kehtivuse lõpuni, kuid mitte kauem, kui 1 aasta
Kohtutäitur Elin Vilippus avaldab teadaande täitemenetluse seadustiku (TMS) § 153 lõike 2 alusel.
Kohtutäitur müüb avalikul elektroonilisel enampakkumisel Kohtutäiturite ja Pankrotihaldurite Koja oksjonikeskkonnas https://www.oksjonikeskus.ee vara:
Tervikvarana Osaühingule Linnusemüüri Üüripinnad kuuluva korteriomandi nr. 1 ja mõttelise osa korteriomandist nr. 2, asukohaga Toom-Kooli tn 7, Tallinn
Kinnisasjad on kantud Tartu Maakohtu kinnistusosakonna registriossa nr:
1. 15273101 - 78401:101:3300, Elamumaa 100%, Harju maakond, Tallinn, Kesklinna linnaosa, Toom-Kooli tn 7.
1083/14770 mõttelist osa kinnistust ja reaalosa eluruum nr. 1, mille üldpind on 108,30 m2 ja mille tähistus plaanil on 1. Kaasomandi teostamine on kitsendatud korteriomandite nr. 15273201, 15273301, 15273401, 15273501, 15273601, 15273701, 15273801, 15273901, 15274001, 15274101, 15274201, 15274401, 15274501 koosseisu kuuluvate reaalosadega seotud õigustega. Muus osas on korteriomandi ese ja sisu määratud 8.10.2003 asjaõiguslepinguga.
Kinnisasja pindala 753 m2.
2. 15273201 (võlgnikule kuulub 726/1309 kaasomandist) - 78401:101:3300, Elamumaa 100%, Harju maakond, Tallinn, Kesklinna linnaosa, Toom-Kooli tn 7.
1309/14770 mõttelist osa kinnistust ja reaalosa eluruum nr. 2, mille üldpind on 130,90 m2 ja mille tähistus plaanil on 2. Kaasomandi teostamine on kitsendatud korteriomandite nr. 15273101, 15273301, 15273401, 15273501, 15273601, 15273701, 15273801, 15273901, 15274001, 15274101, 15274201, 15274401, 15274501 koosseisu kuuluvate reaalosadega seotud õigustega. Muus osas on korteriomandi ese ja sisu määratud 8.10.2003 asjaõiguslepinguga.
Kinnisasja pindala 753 m2.
III. jaos - Märkus kaasomandi valdamise ja kasutamise kohta. Kaasomandi valdamise ja kasutamise korra kokkulepe vastavalt 05.01.2023.a. sõlmitud lepingu punktidele neli üks (4.1.) kuni neli kümme (4.10.) ja lepingu lisadeks olevatele plaanidele.
III. jaos - Märkus kaasomandi valdamise ja kasutamise kohta. Kokkulepe kaasomandi valdamise ja kasutamise kohta vastavalt 02.03.2023 lepingu punktile 6 ja 02.03.2023 lepingu lisaks olevale plaanile.
Mõlemat kinnisasja koormavad kolmandate isikute väljaselgitatud õigused koos nende järjekohtadega ja muud kinnisomandi kitsendused:
III. jaos - Keelumärked käsutamise keelamiseks Estateguru tagatisagent OÜ (registrikood 12766368), kohtutäitur Elin Vilippus kasuks.
IV. jaos - Hüpoteek summas 772 500,00 eurot Estateguru tagatisagent OÜ (registrikood 12766368) kasuks. Kinnistu igakordne omanik on kohustatud alluma kohesele sundtäitmisele hüpoteegiga tagatud nõude rahuldamiseks. Kaaskoormatud kinnisasjad.
IV. jaos - Hüpoteek summas 217 500,00 eurot Estateguru tagatisagent OÜ (registrikood 12766368) kasuks. Kinnistu igakordne omanik on kohustatud alluma kohesele sundtäitmisele hüpoteegiga tagatud nõude rahuldamiseks. Kaaskoormatud kinnisasjad.
Enampakkumine toimub keelumärgete ja hüpoteekidega tagatud nõuete rahuldamiseks. Kõik kinnisasju koormavad keelumärked ja ühishüpoteegid kuuluvad pärast edukat enampakkumist kustutamisele!!!
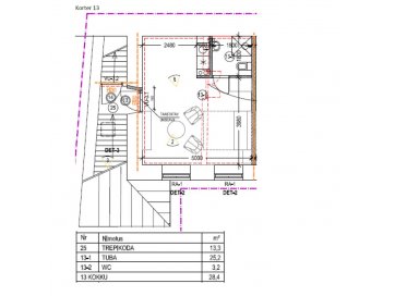
Kinnistusregistris on tegemist kahe korteriga: Toom-Kooli tn 7-1 reg osa nr 15273101 - 108,30 m2 (kinnistusraamatu andmed) ja Toom-Kooli tn 7-2 reg osa nr 15273201 - 130,90 m2 .
Omaniku selgitusel on tegelikkuses tehtud kahest viidatust korteriomandist 6 eluruumi, millest 2 on müüdud ning nende kasutus on määratud kasutuskorraga.
I. Eluruumist nr. 1, mille üldpind on 108,30 m2 ja mille tähistus plaanil on 1, on omaniku kinnitusel ehitatud:
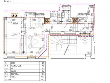
1. 571/1083 suurune mõtteline osa korteriomandist, registriosa nr 15273101 (eluruum, 1-toaline korter nr 1)
2. 284/1083 suurune mõtteline osa korteriomandist, registriosa nr 15273101 (eluruum, 2-toaline korter nr 13)
- hetkel on korter nr 1 ja 13 vahel avaus, mis on võimalik omaniku väitel sulgeda.
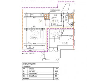
3. 228/1083 suurune mõtteline osa korteriomandist, registriosa nr 15273101 (eluruum, 1-toaline korter nr 6)
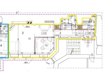
Kaasomandis olevast eluruumist nr. 2, mille üldpind on 130,90 m2 ja mille tähistus plaanil on 2, kuulub võlgniku ainukasutusse:
II. 726/1309 suurune mõtteline osa korteriomandist, registriosa nr 15273201 (eluruum, 2- toaline korter nr 2, mille kasutus on määratud kasutuskorraga).
Omaniku kinnitusel vajavad ümberehitused seadustamist - korteriomandid on juriidiliselt jagamata, puudub vajalik servituudileping kaugküttetrassi väljaehitamiseks, pooleli on vaidlus korter 6 juurde ehitatud korteriomanike kaasomandis oleva hooneosa kasutusõiguse üle.
Kohtutäiturile on esitatud kinnisasju koormavad üürilepingud, mille tingimustele kohtutäitur hinnanguid ei anna. Lepinguga tutvumiseks palume pöörduda kohtutäituri poole.
TMS § 161 kohaselt võib ostja üüri- või rendilepingu üles öelda võlaõigusseaduse §-s 323 ettenähtud tingimustel ja tähtaja jooksul.
Vastavalt 01.01.2018 jõustunud korteriomandi- ja korteriühistuseaduse § 43 lõikele 2 ei vastuta korteriomandi võõrandamisel täitemenetluses selle omandaja korteriühistu ees võõrandaja korteriomandist tulenevate sissenõutavaks muutunud kohustuste eest.
Korteriomandi- ja korteriühistuseaduse § 44 lõikele 1 on korteriühistul korteriomandist tulenevate nõuete tagamiseks pandiõigus korteriomandile (edaspidi korteriühistu pandiõigus). Vastavalt lõikele 2 kohaldatakse korteriühistu pandiõigusele seadustes esimesel järjekohal oleva hüpoteegi kohta sätestatut. TMS § 158 lg 3 kohaselt lõpevad täitmisel olevast nõudest järjekohas tagapool olevad õigused pakkumise parimaks tunnistamisega. Lõppenuks loetakse ka kinnistusraamatusse kantud, sissenõudjale kuuluv õigus, millest tuleneva nõude rahuldamiseks sissenõue pöörati.
Kohtutäitur soovib täiendavalt selgitada, et kuivõrd kohtutäitur ei ole võlgniku seaduslikuks esindajaks ega ka tema vara valitsejaks, siis ei väljasta kohtutäitur võlgniku nimel arveid ega esita võlgniku nimel deklaratsioone. Vara hind ei sisalda ega sellele ei lisandu käibemaksu. Seisuga 04.12.2024 ei ole Linnusemüüri Üüripinnad OÜ ka käibemaksukohustuslane.
Alghind: 512 000 euro(t).
Omanik: Linnusemüüri Üüripinnad OÜ (registrikood:
10112214)
Enampakkumisel osalemiseks tuleb end registreerida oksjonikeskkonnas käesolevas teates nimetatud vara lehel, mille püsilink on: https://www.oksjonikeskus.ee/oksjon/view/?okid=93193 ning tasuda tagatisraha 5 000 eurot Elin Vilippus arveldusarvele nr EE321010011610228222 (SEB). Makseselgitus: „Tagatisraha 23.10.2025 12:00 oksjonil ID93193 osalemise eest. Kinnisvara: Tallinn, Toom-Kooli tn 7, Tallinn, Harju maakond“. Tagatisraha loetakse tasutuks selle laekumise hetkest. Tagatisraha peab olema laekunud hiljemalt 23.10.2025 kell 12:00. Hilisemaid laekumisi ei arvestata. Ostja makstud tagatisraha arvatakse ostuhinna sisse, teistele enampakkumisest osavõtnutele tagastatakse see enampakkumise päevale järgneval tööpäeval.
Enampakkumisele registreerimine algab 01.10.2025 kell 08:00 ja lõpeb 23.10.2025 kell 12:00.
Isik registreeritakse enampakkumisel osalejaks, kui registreerimistaotlus ja selle vajalikud lisad vastavad enampakkumise tingimustele , tagatisraha on tasutud ja isik võib enampakkumisel pakkujana osaleda.
Enampakkumine algab 23.10.2025 kell 14:00 ja lõpeb 30.10.2025 kell 14:00. Pikeneva lõpu intervall on 5 minut(it).
Enampakkumisel tehtavate pakkumiste samm on 1 000 euro(t).
Pakkumisi saab teha ainult oksjonikeskkonnas vastavalt oksjonikeskkonnas näidatud tingimustele.
Elektroonilise enampakkumise võitja peab tasuma ostuhinna enampakkumise lõppemise päevale järgneval tööpäeval TMS § 93 lg-s 3 sätestatud viisil. Kui ostuhind ületab 12 700 eurot, tuleb ostuhinnast üks kümnendik tasuda enampakkumisele järgneval tööpäeval ning ülejäänud hind tuleb tasuda 15 päeva jooksul.
KOLMANDATE ISIKUTE ÕIGUSED
Kohtutäiturile tuleb enne enampakkumise algust teha teatavaks oma õigustest müüdavale asjale, kui nendest ei ole kohtutäiturile veel teatatud, ja neid õigusi kohtutäituri nõudmisel põhistada. Isikutel, kellel on enampakkumist takistavaid õigusi, tuleb saavutada kokkuleppel sissenõudjaga või kohtulahendi alusel enne tulemi jaotamise päeva enampakkumise lõpetamine või peatamine.
VARAGA TUTVUMINE. TÄIENDAV INFO
Huvilistel on võimalik tutvuda eksperthinnanguga.
Varaga tutvumine ja lisainfo kinnisvara.vilippus@taitur.vilippus.ee , tel 684 0620 või kohtutäituri abi Sergei Volf - tel. 5140382
Kinnisasjaga tutvumine toimub eelregistreerimisega, millisest soovist palume eelnevalt teada anda.
Menetluse nr: 022/2024/7069
Kohtutäitur Elin Vilippus
A. Lauteri 5, 10114 Tallinn
Telefon: 6840620
E-post: elinvilippus.buroo@taitur.vilippus.ee
Teadaande avaldaja kontaktandmed:
avaldaja ANNELI KESKÜLA
Telefon: 6840620
E-post: anneli.keskula@taituriabi.vilippus.ee
Teadaande number 2511026
ÜHISVARA SOETAMINE
Vara soetamisel ühisomandisse on vajalik esitada abikaasa allkirjastatud nõusolek enampakkumise korraldajale enampakkumise lõppemise päevale järgneval päeval.
OSTUHINNA TASUMINE KREDIIDIASUTUSE LAENUGA
Täitemenetluse seadustiku § 931 Kui ostja soovib osta sundenampakkumisel müüdavat asja krediidiasutuse väljastatava laenuga, peab ta sellest enampakkumise korraldajale teatama kohe pärast tema pakkumise parimaks tunnistamist. Koheseks teatamiseks loetakse enampakkumise korraldajale teatamist parimaks pakkumiseks tunnistamise päeval.
VASTUVÄIDETE ESITAMINE
Täitemenetluse seadustiku § 921 kohaselt võivad elektroonilisel enampakkumisel osalevad isikud esitada vastuväited enampakkumise läbiviimise kohta enampakkumise lõppemise päevale järgneva tööpäeva jooksul. Vastuväide esitatakse enampakkumise korraldajale.
OSTUHINNA TASUMISE TÄHTAJA PIKENDAMINE
Täitemenetluse seadustiku § 93 lg 6 kohaselt pikendab enampakkumise korraldaja ostja taotlusel ostuhinna tasumise tähtaega täiendavalt 15 päeva võrra. Tasumise tähtaja pikendamiseks tuleb enampakkumise korraldajale esitada avaldus enne esialgse tähtaja möödumist.
Huvilistel on võimalik tutvuda eksperthinnanguga.
Varaga tutvumine ja lisainfo kinnisvara.vilippus@taitur.vilippus.ee , tel 684 0620 või kohtutäituri abi Sergei Volf - tel. 5140382
Kinnisasjaga tutvumine toimub eelregistreerimisega, millisest soovist palume eelnevalt teada anda.
ENAMPAKKUMISELE REGISTREERIMISE KORD Enampakkumisele registreeritakse enne enampakkumise algust. Enampakkumisel osaleda sooviv isik registreerib end enampakkumise kuulutuses märgitud korras ja tähtajal ning tasub tagatisraha. Isik registreeritakse enampakkumisel osalejaks, kui registreerimistaotlus ja selle lisad vastavad enampakkumise tingimustele, tagatisraha on tasutud ning isik võib enampakkumisel pakkujana osaleda. (Täitemenetluse seadustik (edaspidi TMS) § 871) Juhul kui pakkujat esindab volitatud esindaja, siis tuleb kohtutäiturile hiljemalt enampakkumisele registreerimise tähtajaks esitada volikiri. TAGATISRAHA ENAMPAKKUMISEL Kohtutäitur võib enampakkumise korral määrata enampakkumisel osalejatele tagatisraha suuruses kuni kümme protsenti alghinnast. Tagatisraha määramise korral peab enampakkumisel osaleda sooviv isik selle tasuma. Tagatisraha tasutakse kohtutäituri määratud kontole või kohtutäiturile sularahas enampakkumisele registreerimisel. Kui tagatisraha tasutakse kohtutäituri määratud kontole, loetakse tagatisraha tasutuks kohtutäituri konto krediteerimisest tagatisraha ulatuses. Tagatisraha võib tasuda sularahas kohtutäituri büroos, kui tagatisraha suurus ei ületa 640 eurot. Kohtutäitur võib tagatisrahana aktsepteerida ka tagatisraha suuruses antud Eesti või muu Euroopa Liidu liikmesriigi krediidiasutuse tähtajatut, tagasivõtmatut ja tingimusteta maksegarantiid. Alles peale tagatisraha LAEKUMIST võimaldatakse kasutajal enampakkumisel osaleda. Tagatisraha ei pea maksma riik ja kohaliku omavalitsuse üksus ning Eesti Pank ning sissenõudja ja pandipidaja, kui nende nõue katab nõutava tagatisraha. Ostja makstud tagatisraha arvatakse ostuhinna sisse, teistele enampakkumisest osavõtnutele tagastatakse see hiljemalt enampakkumise päevale järgneval tööpäeval. (TMS § 83) ELEKTROONILISE ENAMPAKKUMISE KORD Enne enampakkumise alustamist teeb kohtutäitur oksjonikeskkonnas teatavaks müüdavat vara ning enampakkumist puudutavad olulised tingimused ja alghinna. Enampakkumisel tehtavate pakkumiste sammu määrab kohtutäitur, arvestades müüdava asja väärtust. Põhjendatud juhtudel võib kohtutäitur määrata arestimisaktis märgitust erineva alghinna. Elektrooniline enampakkumine avatakse oksjonikeskkonnas TMS § 84 lõikes 2 nimetatud viisil avalikkusele teatavaks tehtud ajal. Elektrooniline enampakkumine on avatud vähemalt viis tööpäeva. TMS § 80 lõikes 3 nimetatud juhul võib enampakkumise kestust lühendada. Pärast enampakkumise avamist alustavad osalejad pakkumisi alghinnast. Enampakkumisel osalejad sisestavad oma pakkumised elektrooniliselt täiseurodes vastavalt enampakkumise sammule. Elektrooniline enampakkumine lõpeb enampakkumise kuulutuses märgitud ajal. Kui pikenemise intervalli jooksul tehakse enne enampakkumise lõpu aega uus pakkumine, lükkub enampakkumise lõpp pikenemise intervalli võrra edasi ja enampakkumine kestab seni, kuni pakkumisi tehakse. Enampakkumise pikenemise intervall on 1–60 minutit. Kui pikenenud lõpu korral ei ole enampakkumine lõppenud varem, lõpeb enampakkumine 120 tunni möödumisel kuulutuses märgitud enampakkumise lõpu ajast. (TMS § 881) PAKKUMISE PARIMAKS TUNNISTAMINE Elektroonilisel enampakkumisel tunnistatakse parimaks pakkumiseks enampakkumise lõppemisel oksjonikeskkonnas tehtud hinnalt kõrgeim pakkumine. Kui parim pakkuja on loovutanud ostja õigused teisele isikule ja see isik võtab üle ka parimast pakkumisest tulenevad kohustused, esitatakse sellekohased avaldused kohtutäiturile ostuhinna tasumise tähtaja jooksul. Pakkumise parimaks tunnistamine tehakse elektroonilisel enampakkumisel enampakkumise päevale järgneval tööpäeval oksjonikeskkonnas. Kohtutäitur võib erandjuhtudel teatavakstegemise kuni seitsmeks päevaks edasi lükata. Edasilükkamisest annab kohtutäitur enampakkumisel osalejatele viivitamata teada. Kohtutäitur ei tunnista pakkumist parimaks, kui on oluliselt rikutud enampakkumise tingimusi või kui enampakkumist või selle jätkamist takistab kolmanda isiku õigus. Pakkumise parimaks tunnistamine kehtib teatavakstegemise ajast alates. (TMS § 91) VASTUVÄITED Elektroonilisel enampakkumisel osalevad isikud võivad esitada vastuväited enampakkumiste läbiviimise kohta enampakkumise lõppemise päevale järgneva tööpäeva jooksul. Kohtutäitur kannab vastuväited enampakkumise akti. Kui kohalviibijad vastuväiteid ei esita, ei ole neil õigust kaevata akti ebaõige koostamise peale ega akti ebaõigsusele ega enampakkumise oluliste tingimuste rikkumisele hiljem tugineda. Enampakkumise akti koostab kohtutäitur pärast vastuväidete esitamise tähtaja möödumist. (TMS §92, 921) OSTUHINNA TASUMISE TINGIMUSED Kui ostuhind jääb alla 12 700 euro, peab elektroonilise enampakkumise võitja tasuma ostuhinna enampakkumise lõppemise päevale järgneval tööpäeval. Kui ostuhind ületab 12 700 eurot, peab ostja tasuma ühe kümnendiku ostuhinnast enampakkumise lõppemise päevale järgneval tööpäeval, ülejäänud hind tuleb tasuda 15 päeva jooksul. Kui ostjaks on võlgnik, peab ta tasuma kohe kogu ostuhinna. Kohtutäitur kuulutab enampakkumise nurjunuks, kui parim pakkuja ei tasu ostuhinda või üht kümnendikku sellest ettenähtud ajaks. Sellisel juhul pannakse asi kohe kordusenampakkumisele. Esialgne ostja ei või eelmises lauses nimetatud asjaoludel toimuval kordusenampakkumisel osaleda. Tema makstud tagatisraha ei tagastata ja see kantakse koja eelarve ühisossa. Samuti peab ta tasuma tema pakutud hinna ning kordusenampakkumisel pakutud hinna vahe, kui kordusenampakkumisel pakutud hind on tema pakutud hinnast madalam. Võlgnikul on õigus nimetatud hinna vahe esialgselt ostjalt sisse nõuda. (TMS §93) OSTUHINNA TASUMINE LAENUGA Kui ostja soovib osta sundenampakkumisel müüdavat asja krediidiasutuse väljastatava laenuga, peab ta sellest kohtutäiturile teatama kohe pärast tema pakkumise parimaks tunnistamist (hiljemalt enampakkumisele järgneval tööpäeval). Teade saata aadressile kinnisvara.vilippus@taitur.vilippus.ee. Ostuhinna tasumisel laenuga ei kohaldata ostjale TMS §-s 93 sätestatud ostuhinnast ühe kümnendiku ega ostuhinna kohese tasumise kohustust. Ostja kohustub tasuma kogu ostuhinna või tagama ostuhinna tasumise kohustuse täitmise krediidiasutuse poolt 15 päeva jooksul parimaks pakkumiseks tunnistamise päevale järgnevast päevast arvates. Ostuhinna tasumist laenuga ei saa taotleda võlgnik. Kui ostja soovib osta sundenampakkumisel müüdavat asja krediidiasutuse väljastatava laenuga või taotleb ostuhinna tasumise tähtaja pikendamist (juhul kui ostuhind ületab 12 700 eurot) täiendavalt 15 päeva võrra, peab ta sellest kohtutäiturile teatama kohe pärast tema pakkumise parimaks tunnistamist (hiljemalt enampakkumisele järgneval tööpäeval). (TMS § 931) KANDED KINNISTUSRAAMATUSSE Omand enampakkumisel müüdud kinnisasjale tekib enampakkumise akti alusel kinnistusraamatusse kande tegemisega. Kinnisasja valduse üleandmist uuele omanikule kohtutäitur ei garanteeri. (TMS § 156) Vara soetamisel ühis- või kaasomandisse on vajalik esitada abikaasa või kaasomaniku allkirjastatud nõusolek enampakkumise lõppemise päevale järgneval päeval aadressile kinnisvara.vilippus@taitur.vilippus.ee. Kohtutäitur esitab kinnistusosakonnale enampakkumise akti ärakirja ning avaldused ostja kinnistusraamatusse omanikuna sissekandmiseks ja keelumärke ja lõppevate õiguste kustutamiseks viivitamata pärast kogu ostuhinna tasumist ja riigilõivu tasumist tõendava dokumendi esitamist, kui seadusega ei ole sätestatud teisiti. Kohtutäituri poolt edastatavat enampakkumise akti ärakirja ning avaldust loetakse ostja, hüpoteegipidaja ja ostja esitatud avalduseks. (TMS § 160) Ostja on kohustatud tasuma riigilõivu riigilõivuseaduses sätestatud ulatuses. Riigilõivu täpne suurus ning edaspidised juhised edastatakse ostjale pärast edukat enampakkumist, koos enampakkumise aktiga. ASJA JUHUSLIKU HÄVIMISE RIISIKO ÜLEMINEK JA VASTUTUS ASJA PUUDUSTE EEST Kinnisasja ja sellega koos müüdud esemete hävimise riisiko läheb enampakkumisel ostjale üle pakkumise parimaks tunnistamisega. Pakkumise parimaks tunnistamisest alates kannab ostja kõik kulud ja koormatised ning saab kogu kasu. Elektroonilisel enampakkumisel tunnistatakse parimaks pakkumiseks enampakkumise lõppemisel oksjonikeskkonnas tehtud hinnalt kõrgeim pakkumine. Kohtutäitur ei tunnista pakkumist parimaks, kui on oluliselt rikutud enampakkumise tingimusi või kui enampakkumist või selle jätkamist takistab kolmanda isiku õigus. Asja müümisel täitemenetluses ei vastuta kohtutäitur ega võlgnik müüdud asja puuduste eest. See ei välista kohtutäituri ega võlgniku võimalikku vastutust õigusvastaselt tekitatud kahju eest. (TMS § 103) KOLMANDATE ISIKUTE ÕIGUSED Kohtutäiturile tuleb enne enampakkumist teatavaks teha oma õigustest müüdavale asjale, kui nendest ei ole kohtutäiturile veel teatatud, ja neid õigusi kohtutäituri nõudmisel põhistada. Isikutel, kellel on enampakkumist takistavaid õigusi, tuleb saavutada kokkuleppel sissenõudjaga või kohtulahendi alusel enne tulemi jaotamise päeva enampakkumise lõpetamine või peatamine. (TMS § 84, 153) Kinnisasja täitemenetluses müügi korral jäävad püsima sissenõudja nõude või selle tagatiseks oleva õiguse järjekohast eespool ja samal järjekohal olevad kinnistusraamatust nähtuvad õigused. Nõudest järjekohas tagapool olevad õigused lõpevad pakkumise parimaks tunnistamisega. Lõppenuks loetakse ka kinnistusraamatusse kantud, sissenõudjale kuuluv õigus, millest tuleneva nõude rahuldamiseks sissenõue pöörati. Kui isiku kinnistusraamatusse kantud õigus kinnisasja müügiga lõpeb, võib õiguse omaja tulemist nõuda TMS § 108 lõikes 2 sätestatud korras hüvitist kustutatud õiguse eest vastavalt kustutatud õiguse endisele järjekohale. (TMS § 158, 176) ÜÜRI- VÕI RENDILEPINGUD Ostja võib üüri- või rendilepingu üles öelda võlaõigusseaduse §-s 323 ettenähtud tingimustel ja tähtaja jooksul. Ostja ei või üüri- või rendilepingut üles öelda, kui kinnistusraamatusse on kantud märge võlaõigusseaduse § 324 kohaselt ja märget ei saa kinnistusraamatust järjekoha tõttu kustutada. (TMS § 161) ENAMPAKKUMISE PEATUMINE KATKESTUSE TÕTTU Kui enampakkumise lõpu ajal esineb oksjonikeskkonnas katkestus, peatub enampakkumine katkestuse ajaks ja jätkub pärast katkestuse lõppemist. Enampakkumise lõpu aeg lükkub katkestuse aja võrra edasi. (TMS § 991) ENAMPAKKUMISE KEHTETUKS TUNNISTAMINE Enampakkumise akti kättetoimetamisest alates 30 päeva jooksul võib täitemenetluse osaline esitada kohtule hagi enampakkumise kehtetuks tunnistamiseks, kui vara on müüdud isikule, kellel ei olnud õigust seda osta, või kui enampakkumine toimus tühise arestimise alusel või rikuti teisiti enampakkumise olulisi tingimusi. (TMS § 223)
Automaatse pakkumise piirsumma:
Vara soetamisel ühisomandisse on vajalik esitada abikaasa allkirjastatud nõusolek enampakkumise korraldajale enampakkumise lõppemise päevale järgneval päeval.
Täitemenetluse seadustiku § 931 Kui ostja soovib osta sundenampakkumisel müüdavat asja krediidiasutuse väljastatava laenuga, peab ta sellest enampakkumise korraldajale teatama kohe pärast tema pakkumise parimaks tunnistamist. Koheseks teatamiseks loetakse enampakkumise korraldajale teatamist parimaks pakkumiseks tunnistamise päeval.
Täitemenetluse seadustiku § 921 kohaselt võivad elektroonilisel enampakkumisel osalevad isikud esitada vastuväited enampakkumise läbiviimise kohta enampakkumise lõppemise päevale järgneva tööpäeva jooksul. Vastuväide esitatakse enampakkumise korraldajale.
Täitemenetluse seadustiku § 93 lg 6 kohaselt pikendab enampakkumise korraldaja ostja taotlusel ostuhinna tasumise tähtaega täiendavalt 15 päeva võrra. Tasumise tähtaja pikendamiseks tuleb enampakkumise korraldajale esitada avaldus enne esialgse tähtaja möödumist.
Elektrooniline enampakkumine lõpeb enampakkumise kuulutuses märgitud ajal. Kui pikenemise intervalli jooksul tehakse enne enampakkumise lõpu aega uus pakkumine, lükkub enampakkumise lõpp pikenemise intervalli võrra edasi ja enampakkumine kestab seni, kuni pakkumisi tehakse. Kui pikenenud lõpu korral ei ole enampakkumine lõppenud varem, lõpeb enampakkumine 120 tunni möödumisel kuulutuses märgitud enampakkumise lõpu ajast.