Kinnistusraamatu väljavõttega saab tutvuda pärast oksjonikeskkonda sisse logimist.
2-toaline ehitusjärgus korter Aia 12-1, Kehra
| OKSJONI ANDMED ID: |
97822 |
| alghind oksjonil: |
86 400 € |
| tagatisraha: |
8 640 € |
| aega alguseni: |
23 p, 19 tundi, 2 minutit |
|
|
|
| registreerimise algus: |
24.04.2026 kl 13:00 |
| registreerimise lõpp: |
15.05.2026 kl 17:00 |
| oksjoni algus: |
18.05.2026 kl 10:00 |
| oksjoni lõpp: |
22.05.2026 kl 17:00 |
| pikenemise intervall: |
5 min |
| laekumise tähtpäev: |
15.05.2026 kl 17:00 |
|
Ühisvara soetamise korral vaata siia
Ostuhinna tasumise korral krediidiasutuse laenuga vaata siia
Vastuväidete esitamiseks vaata siia
Ostuhinna tasumise tähtaja pikendamise korral vaata siia
Enampakkumist reguleerivad õigusnormid ja korraldaja selgitused
Ametlik enampakkumise teade
Avaldamise algus: 24.04.2026
Avaldamise lõpp: täitemenetluse lõppemiseni või müügikuulutuse kehtivuse lõpuni, kuid mitte kauem, kui 1 aasta
Kohtutäitur Katrin Vellet avaldab teadaande täitemenetluse seadustiku (TMS) § 153 lõike 2 alusel.
Kohtutäitur müüb avalikul elektroonilisel enampakkumisel Kohtutäiturite ja Pankrotihaldurite Koja oksjonikeskkonnas https://www.oksjonikeskus.ee vara:
Enampakkumise esemeks on Tartu Maakohtu kinnitusosakonna registriosa nr 22357550 alla kantud korteriomand nr 1 aadressil Harju maakond, Anija vald, Kehra linn, Aia tn 12 (katastritunnus nr 14101:001:0264, elamumaa 100%).
437/7422 mõttelist osa kinnisasjast ja eriomandi ese eluruum nr 1. Teised sama kinnisasja korteriomandid nr 22357650, 22357750, 22357850, 22357950, 22358050, 22358150, 22358250, 22358350, 22358450, 22358550, 22358650, 22358750, 22358850, 22358950. Eriomand loodud vastavalt 13.09.2022 kinnistamisavaldusele ja hoonejaotusplaanile.
Erikasutusõiguste kokkulepe vastavalt 13.09.2022 lepingu punktile 3.4. ja lisatud plaanidele. Erikasutusõigus ehituslikult ühendatud rõdule; parkimiskohad nr 1, nr 11 ja panipaik P-1.
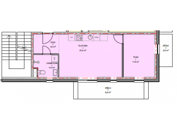
Tähistus nr 1, I korrusel asuv 2-toaline eluruum (elutuba, esik, tuba, vannituba/wc), 43.7 m2, 2 rõdu (3.6 m2 ja 9.8 m2), 1 panipaik (P-1) 1 m2, 2 parkimiskohta nr 1 ja 11.
Omanikuna II jaos on sisse kantud: TeamRP OÜ (registrikood 16092820).
Eluruum on ehitusjärgus. Vannitoa/wc seinad ja põrand plaaditud, ventilatsiooni torud paigaldatud, eluruumi seinad ja lagi viimistletud (värvkate), elekter ja põrandaküte paigaldatud, aknad, rõduuksed ja siseuksed paigaldatud, sanitaartehnika paigaldatud, betoonpõrandad. Tsentraalne vesi ja kanalisatsioon, kaugküte. Puuduvad ventilatsiooniseade ja põrandakate.
Kasutusluba puudub, kasutusloa taotlus on esitatud 01.04.2026 ning selle menetlus on pooleli. Kinnisasja omandaja peab arvestama kasutusloa puudumisega.
Registriosa III jao kanded:
Isiklik kasutusõigus Anija vald kasuks. Tähtajatu ja tasuta isikliku kasutusõigus - Hoidumisservituut, mille sisuks on kinnistu omaniku kohustus mitte alustada kinnistu suhtes kehtivale detailplaneeringule vastavate hoonete kasutamist seni, kuni on rajatud kinnistu suhtes kehtivale detailplaneeringule vastavad teed ning tehnovõrgud ja -rajatised. Kaaskoormatud kinnistud nr 22357650, 22357750, 22357850, 22357950, 22358050, 22358150, 22358250, 22358350, 22358450, 22358550, 22358650, 22358750, 22358850, 22358950.
Keelumärge kinnistu käsutamise keelamiseks kohtutäitur Katrin Vellet (isikukood 47412310319), UAB SME Capital 3 (registrikood 305228886) kasuks.
Registriosa IV jakku kantud hüpoteegid:
1
Hüpoteek summas 32 700,00 eurot UAB SME Capital 3 (registrikood 305228886) kasuks. Kinnistu igakordne omanik on kohustatud alluma kohesele sundtäitmisele hüpoteegiga tagatud nõude rahuldamiseks. Kaaskoormatud kinnistud: 22358150; 22358550; 22358950. Sisse kantud 02.11.2022. 22.10.2024 kinnistamisavalduse alusel muudetud 29.10.2024.
2
Hüpoteek summas 12 300,00 eurot UAB SME Capital 3 (registrikood 305228886) kasuks. Kinnistu igakordne omanik on kohustatud alluma kohesele sundtäitmisele hüpoteegiga tagatud nõude rahuldamiseks. Kaaskoormatud kinnistud: 22358150; 22358550; 22358950. Sisse kantud 02.11.2022. 22.10.2024 kinnistamisavalduse alusel muudetud 29.10.2024.
3
Hüpoteek summas 955 000,00 eurot UAB SME Capital 3 (registrikood 305228886) kasuks. Kinnistu igakordne omanik on kohustatud alluma kohesele sundtäitmisele hüpoteegiga tagatud nõude rahuldamiseks. Kaaskoormatud kinnistud: 22358150; 22358550; 22358950. Sisse kantud 02.11.2022. 22.10.2024 kinnistamisavalduse alusel muudetud 29.10.2024.
4
Hüpoteek summas 1 300 000,00 eurot UAB SME Capital 3 (registrikood 305228886) kasuks. Kinnistu igakordne omanik on kohustatud alluma kohesele sundtäitmisele hüpoteegiga tagatud nõude rahuldamiseks. Kaaskoormatud kinnistud: 22358150; 22358550. Sisse kantud 30.12.2022. 22.10.2024 kinnistamisavalduse alusel muudetud 29.10.2024.
6
Hüpoteek summas 10 000,00 eurot OÜ Trenord Haldus (registrikood 12534445) kasuks. Kinnistu igakordne omanik on kohustatud alluma kohesele sundtäitmisele hüpoteegiga tagatud nõude rahuldamiseks. 04.12.2024 kinnistamisavalduse alusel sisse kantud 09.12.2024.
8
Hüpoteek summas 80 000,00 eurot JOHANSON & PARTNER OÜ (registrikood 11019706) kasuks. Kinnistu igakordne omanik on kohustatud alluma kohesele sundtäitmisele hüpoteegiga tagatud nõude rahuldamiseks. Kaaskoormatud kinnistud: 22357350; 22358150; 22358550. 13.02.2025 kinnistamisavalduse alusel sisse kantud 17.02.2025.
Enampakkumise õnnestumisel käsutamise keelumärge ja hüpoteegikanded kuuluvad kustutamisele.
Isiklik kasutusõigus Anija vald kasuks jääb kehtima.
Elamu haldamiseks on moodustatud KÜ, kelle nõuded rahuldatakse tulemist esimeses järjekorras seadusest tulenevas ulatuses. Vastavalt korteriomandi- ja korteriühistuseaduse § 44 lõikele 1 on korteriühistul korteriomandist tulenevate nõuete tagamiseks pandiõigus korteriomandile (edaspidi korteriühistu pandiõigus). Vastavalt lõikele 2 kohaldatakse korteriühistu pandiõigusele seadustes esimesel järjekohal oleva hüpoteegi kohta sätestatut. Korteriühistu pandiõiguse suurus on korteriomandi eelmise majandusaasta majandamiskulude summa. Korteriühistu pandiõiguse suurus määratakse korteriomanike üldkoosoleku poolt kinnitatud majandusaasta aruande järgi omandi ülemineku päeva seisuga.
Vastavalt 01.01.2018 jõustunud korteriomandi- ja korteriühistuseaduse § 43 lõikele 2 korteriomandi võõrandamisel täitemenetluses ei vastuta selle omandaja korteriühistu ees käendajana võõrandaja korteriomandist tulenevate sissenõutavaks muutunud kohustuste eest.
Asja müümisel täitemenetluses ei vastuta kohtutäitur ega võlgnik müüdud asja puuduste eest. Sätet ei kohaldata, kui asja müüb võlgnik kohtutäituri kontrolli all. Kinnisasja ja sellega koos müüdud esemete hävimise riisiko läheb enampakkumisel ostjale üle pakkumise parimaks tunnistamisega. Pakkumise parimaks tunnistamisest alates kannab ostja kõik kulud ja koormatised ning saab kogu kasu.
NB! Kohustus tasuda kommunaalteenuste arved läheb enampakkumise võitjale üle pakkumise parimaks tunnistamise päevast (TMS § 155).
Alghind: 86 400 euro(t).
Omanik: TeamRP OÜ (registrikood:
16092820)
Enampakkumisel osalemiseks tuleb end registreerida oksjonikeskkonnas käesolevas teates nimetatud vara lehel, mille püsilink on: https://www.oksjonikeskus.ee/oksjon/view/?okid=97822 ning tasuda tagatisraha 8 640 eurot Katrin Vellet arveldusarvele nr EE501010010144082016 (SEB). Makseselgitus: „Tagatisraha 15.05.2026 17:00 oksjonil ID97822 osalemise eest. Kinnisvara: Aia tn 12, Anija vald, Harju maakond“. Tagatisraha loetakse tasutuks selle laekumise hetkest. Tagatisraha peab olema laekunud hiljemalt 15.05.2026 kell 17:00. Hilisemaid laekumisi ei arvestata. Ostja makstud tagatisraha arvatakse ostuhinna sisse, teistele enampakkumisest osavõtnutele tagastatakse see enampakkumise päevale järgneval tööpäeval.
Enampakkumisele registreerimine algab 24.04.2026 kell 13:00 ja lõpeb 15.05.2026 kell 17:00.
Isik registreeritakse enampakkumisel osalejaks, kui registreerimistaotlus ja selle vajalikud lisad vastavad enampakkumise tingimustele , tagatisraha on tasutud ja isik võib enampakkumisel pakkujana osaleda.
Enampakkumine algab 18.05.2026 kell 10:00 ja lõpeb 22.05.2026 kell 17:00. Pikeneva lõpu intervall on 5 minut(it).
Enampakkumisel tehtavate pakkumiste samm on 1 000 euro(t).
Pakkumisi saab teha ainult oksjonikeskkonnas vastavalt oksjonikeskkonnas näidatud tingimustele.
Elektroonilise enampakkumise võitja peab tasuma ostuhinna enampakkumise lõppemise päevale järgneval tööpäeval TMS § 93 lg-s 3 sätestatud viisil. Kui ostuhind ületab 12 700 eurot, tuleb ostuhinnast üks kümnendik tasuda enampakkumisele järgneval tööpäeval ning ülejäänud hind tuleb tasuda 15 päeva jooksul.
KOLMANDATE ISIKUTE ÕIGUSED
Kohtutäiturile tuleb enne enampakkumise algust teha teatavaks oma õigustest müüdavale asjale, kui nendest ei ole kohtutäiturile veel teatatud, ja neid õigusi kohtutäituri nõudmisel põhistada. Isikutel, kellel on enampakkumist takistavaid õigusi, tuleb saavutada kokkuleppel sissenõudjaga või kohtulahendi alusel enne tulemi jaotamise päeva enampakkumise lõpetamine või peatamine.
VARAGA TUTVUMINE. TÄIENDAV INFO
Huvilistel on võimalik müüdava varaga tutvuda 13.05.2026 kell 18.00-19.00 kinnisasja asukohas.
Müüdava vara kuulutuse ja fotodega on võimalik tutvuda oksjonikeskkonnas www.oksjonikeskus.ee ning kinnisvaraportaalis www.kv.ee.
Info saamiseks pöörduda tööpäeviti kl 10.00-13.00 tel nr 55900347 või e-post tatjana.ljapuskina@vellet.ee.
Menetluse nr: 031/2025/1326
Kohtutäitur Katrin Vellet
Tartu mnt 16B (3.korrus) 10117 Tallinn
Telefon: 6646080
E-post: info@vellet.ee
Teadaande avaldaja kontaktandmed:
Jurist TATJANA LJAPUŠKINA
Telefon: 6646080
E-post: tatjana.ljapuskina@vellet.ee
Teadaande number 2593305
ÜHISVARA SOETAMINE
Vara soetamisel ühisomandisse on vajalik esitada abikaasa allkirjastatud nõusolek enampakkumise korraldajale enampakkumise lõppemise päevale järgneval päeval.
OSTUHINNA TASUMINE KREDIIDIASUTUSE LAENUGA
Täitemenetluse seadustiku § 931 Kui ostja soovib osta sundenampakkumisel müüdavat asja krediidiasutuse väljastatava laenuga, peab ta sellest enampakkumise korraldajale teatama kohe pärast tema pakkumise parimaks tunnistamist. Koheseks teatamiseks loetakse enampakkumise korraldajale teatamist parimaks pakkumiseks tunnistamise päeval.
VASTUVÄIDETE ESITAMINE
Täitemenetluse seadustiku § 921 kohaselt võivad elektroonilisel enampakkumisel osalevad isikud esitada vastuväited enampakkumise läbiviimise kohta enampakkumise lõppemise päevale järgneva tööpäeva jooksul. Vastuväide esitatakse enampakkumise korraldajale.
OSTUHINNA TASUMISE TÄHTAJA PIKENDAMINE
Täitemenetluse seadustiku § 93 lg 6 kohaselt pikendab enampakkumise korraldaja ostja taotlusel ostuhinna tasumise tähtaega täiendavalt 15 päeva võrra. Tasumise tähtaja pikendamiseks tuleb enampakkumise korraldajale esitada avaldus enne esialgse tähtaja möödumist.
ENAMPAKKUMISELE REGISTREERIMISE KORD
Enampakkumisele registreeritakse enne enampakkumise algust. Enampakkumisel osaleda sooviv isik registreerib end enampakkumise kuulutuses märgitud korras ja tähtajal ning tasub tagatisraha. Isik registreeritakse enampakkumisel osalejaks, kui registreerimistaotlus ja selle lisad vastavad enampakkumise tingimustele, tagatisraha on tasutud ning isik võib enampakkumisel pakkujana osaleda. (Täitemenetluse seadustik (edaspidi TMS) § 871)
Juhul kui pakkujat esindab volitatud esindaja, siis tuleb kohtutäiturile hiljemalt enampakkumisele registreerimise tähtajaks esitada volikiri.
TAGATISRAHA ENAMPAKKUMISEL
Kohtutäitur võib enampakkumise korral määrata enampakkumisel osalejatele tagatisraha suuruses kuni kümme protsenti alghinnast. Tagatisraha määramise korral peab enampakkumisel osaleda sooviv isik selle tasuma. Tagatisraha tasutakse kohtutäituri määratud kontole enampakkumisele registreerimisel. Kui tagatisraha tasutakse kohtutäituri määratud kontole, loetakse tagatisraha tasutuks kohtutäituri konto krediteerimisest tagatisraha ulatuses. Kui tagatisraha tasutakse oksjonikeskkonnas makseteenuse pakkuja pakutava kohest laekumist võimaldava makseviisi kaudu, loetakse tagatisraha kohtutäiturile tasutuks koja tsentraalkonto krediteerimisest tagatisraha ulatuses. Enampakkumisel osaleja kannab nimetatud viisil tagatisraha tasumisega kaasnevad kulud. Kohtutäitur võib tagatisrahana aktsepteerida ka tagatisraha suuruses antud Eesti või muu Euroopa Liidu liikmesriigi krediidiasutuse tähtajatut, tagasivõtmatut ja tingimusteta maksegarantiid. Alles peale tagatisraha laekumist võimaldatakse kasutajal enampakkumisel osaleda.
Tagatisraha ei pea maksma riik ja kohaliku omavalitsuse üksus ning Eesti Pank ning sissenõudja ja pandipidaja, kui nende nõue katab nõutava tagatisraha. Ostja makstud tagatisraha arvatakse ostuhinna sisse, teistele enampakkumisest osavõtnutele tagastatakse see hiljemalt enampakkumise päevale järgneval tööpäeval (TMS § 83).
ELEKTROONILISE ENAMPAKKUMISE KORD
Enne enampakkumise alustamist teeb kohtutäitur oksjonikeskkonnas teatavaks müüdavat vara ning enampakkumist puudutavad olulised tingimused ja alghinna. Enampakkumisel tehtavate pakkumiste sammu määrab kohtutäitur, arvestades müüdava asja väärtust. Põhjendatud juhtudel võib kohtutäitur määrata arestimisaktis märgitust erineva alghinna. Elektrooniline enampakkumine avatakse oksjonikeskkonnas TMS § 84 lõikes 2 nimetatud viisil avalikkusele teatavaks tehtud ajal. Elektrooniline enampakkumine on avatud vähemalt viis tööpäeva. TMS § 80 lõikes 3 nimetatud juhul võib enampakkumise kestust lühendada. Pärast enampakkumise avamist alustavad osalejad pakkumisi alghinnast. Enampakkumisel osalejad sisestavad oma pakkumised elektrooniliselt täiseurodes vastavalt enampakkumise sammule. Elektrooniline enampakkumine lõpeb enampakkumise kuulutuses märgitud ajal. Kui pikenemise intervalli jooksul tehakse enne enampakkumise lõpu aega uus pakkumine, lükkub enampakkumise lõpp pikenemise intervalli võrra edasi ja enampakkumine kestab seni, kuni pakkumisi tehakse. Enampakkumise pikenemise intervall on 1–60 minutit. Kui pikenenud lõpu korral ei ole enampakkumine lõppenud varem, lõpeb enampakkumine 120 tunni möödumisel kuulutuses märgitud enampakkumise lõpu ajast. (TMS § 881).
PAKKUMISE PARIMAKS TUNNISTAMINE
Elektroonilisel enampakkumisel tunnistatakse parimaks pakkumiseks enampakkumise lõppemisel oksjonikeskkonnas tehtud hinnalt kõrgeim pakkumine. Kui parim pakkuja on loovutanud ostja õigused teisele isikule ja see isik võtab üle ka parimast pakkumisest tulenevad kohustused, esitatakse sellekohased avaldused kohtutäiturile ostuhinna tasumise tähtaja jooksul. Pakkumise parimaks tunnistamine tehakse elektroonilisel enampakkumisel enampakkumise päevale järgneval tööpäeval oksjonikeskkonnas.
Kohtutäitur võib erandjuhtudel teatavakstegemise kuni seitsmeks päevaks edasi lükata. Edasilükkamisest annab kohtutäitur enampakkumisel osalejatele viivitamata teada. Kohtutäitur ei tunnista pakkumist parimaks, kui on oluliselt rikutud enampakkumise tingimusi või kui enampakkumist või selle jätkamist takistab kolmanda isiku õigus. Pakkumise parimaks tunnistamine kehtib teatavakstegemise ajast alates. (TMS § 91)
VASTUVÄITED
Elektroonilisel enampakkumisel osalevad isikud võivad esitada vastuväited enampakkumiste läbiviimise kohta enampakkumise lõppemise päevale järgneva tööpäeva jooksul. Kohtutäitur kannab vastuväited enampakkumise akti. Kui kohalviibijad vastuväiteid ei esita, ei ole neil õigust kaevata akti ebaõige koostamise peale ega akti ebaõigsusele ega enampakkumise oluliste tingimuste rikkumisele hiljem tugineda. Enampakkumise akti koostab kohtutäitur pärast vastuväidete esitamise tähtaja möödumist. (TMS §92, 921)
OSTUHINNA TASUMISE TINGIMUSED
Kui ostuhind jääb alla 12 700 euro, peab elektroonilise enampakkumise võitja tasuma ostuhinna enampakkumise lõppemise päevale järgneval tööpäeval.
Kui ostuhind ületab 12 700 eurot, tuleb ostuhinnast üks kümnendik tasuda enampakkumisele järgneval tööpäeval ning ülejäänud hind tuleb tasuda 15 päeva jooksul. Kui ostjaks on võlgnik, tuleb kogu ostuhind tasuda enampakkumisele järgneval tööpäeval. Kui ostuhind tasutakse oksjonikeskkonnas makseteenuse pakkuja pakutava kohest laekumist võimaldava makseviisi kaudu, loetakse ostuhind kohtutäiturile tasutuks koja tsentraalkonto krediteerimisest ostuhinna ulatuses. Ostja kannab nimetatud viisil ostuhinna tasumisega kaasnevad kulud. (TMS §93)
Kohtutäitur kuulutab enampakkumise nurjunuks, kui parim pakkuja ei tasu ostuhinda või üht kümnendikku sellest ettenähtud ajaks. Sellisel juhul pannakse asi kohe kordusenampakkumisele. Esialgne ostja ei või eelmises lauses nimetatud asjaoludel toimuval kordusenampakkumisel osaleda. Tema makstud tagatisraha ei tagastata ja see kantakse koja eelarve ühisossa. Samuti peab ta tasuma tema pakutud hinna ning kordusenampakkumisel pakutud hinna vahe, kui kordusenampakkumisel pakutud hind on tema pakutud hinnast madalam. Võlgnikul on õigus nimetatud hinna vahe esialgselt ostjalt sisse nõuda. (TMS § 99, 100).
OSTUHINNA TASUMINE LAENUGA
Kui ostja soovib osta enampakkumisel müüdavat asja krediidiasutuse väljastatava laenuga, peab ta sellest kohtutäiturit teavitama pakkumise parimaks tunnistamise päeval. Ostuhinna tasumisel laenuga ei kohaldata ostjale ostuhinnast ühe kümnendiku ega ostuhinna kohese tasumise kohustust. Ostja kohustub tasuma kogu ostuhinna või tagama ostuhinna tasumise kohustuse täitmise krediidiasutuse poolt 15 päeva jooksul parimaks pakkumiseks tunnistamise päevale järgnevast päevast arvates. Ostja taotlusel võib kohtutäitur ostuhinna tasumist pikendada 15 päeva võrra. Ostuhinna tasumist laenuga ei saa taotleda võlgnik. (TMS § 931)
KANDED KINNISTUSRAAMATUSSE
Omand enampakkumisel müüdud kinnisasjale tekib enampakkumise akti alusel kinnistusraamatusse kande tegemisega. (TMS § 156)
Kinnisasja valduse üleandmist uuele omanikule kohtutäitur ei garanteeri.
Vara soetamisel ühis- või kaasomandisse on vajalik esitada abikaasa või kaasomaniku allkirjastatud nõusolek enampakkumise lõppemise päevale järgneval päeval aadressile.
Kohtutäitur esitab kinnistusosakonnale enampakkumise akti ärakirja ning avaldused ostja kinnistusraamatusse omanikuna sissekandmiseks ja keelumärke ja lõppevate õiguste kustutamiseks viivitamata pärast kogu ostuhinna tasumist ja riigilõivu tasumist tõendava dokumendi esitamist, kui seadusega ei ole sätestatud teisiti. Kohtutäituri poolt edastatavat enampakkumise akti ärakirja ning avaldust loetakse ostja, hüpoteegipidaja ja ostja esitatud avalduseks. (TMS § 160)
Ostja on kohustatud tasuma riigilõivu riigilõivuseaduses sätestatud ulatuses. Riigilõivu täpne suurus ning edaspidised juhised edastatakse ostjale pärast edukat enampakkumist, koos enampakkumise aktiga.
ASJA JUHUSLIKU HÄVIMISE RIISIKO ÜLEMINEK JA VASTUTUS ASJA PUUDUSTE EEST
Kinnisasja ja sellega koos müüdud esemete hävimise riisiko läheb enampakkumisel ostjale üle pakkumise parimaks tunnistamisega. Pakkumise parimaks tunnistamisest alates kannab ostja kõik kulud ja koormatised ning saab kogu kasu. (TMS § 155) Asja müümisel täitemenetluses ei vastuta kohtutäitur ega võlgnik müüdud asja puuduste eest. See ei välista kohtutäituri ega võlgniku võimalikku vastutust õigusvastaselt tekitatud kahju eest. (TMS § 103)
KOLMANDATE ISIKUTE ÕIGUSED
Kohtutäiturile tuleb enne enampakkumist teatavaks teha oma õigustest müüdavale asjale, kui nendest ei ole kohtutäiturile veel teatatud, ja neid õigusi kohtutäituri nõudmisel põhistada. Isikutel, kellel on enampakkumist takistavaid õigusi, tuleb saavutada kokkuleppel sissenõudjaga või kohtulahendi alusel enne tulemi jaotamise päeva enampakkumise lõpetamine või peatamine. (TMS § 84, 153).
Kinnisasja täitemenetluses müügi korral jäävad püsima sissenõudja nõude või selle tagatiseks oleva õiguse järjekohast eespool ja samal järjekohal olevad kinnistusraamatust nähtuvad õigused. Nõudest järjekohas tagapool olevad õigused lõpevad pakkumise parimaks tunnistamisega. Lõppenuks loetakse ka kinnistusraamatusse kantud, sissenõudjale kuuluv õigus, millest tuleneva nõude rahuldamiseks sissenõue pöörati. Kui isiku kinnistusraamatusse kantud õigus kinnisasja müügiga lõpeb, võib õiguse omaja tulemist nõuda TMS § 108 lõikes 2 sätestatud korras hüvitist kustutatud õiguse eest vastavalt kustutatud õiguse endisele järjekohale. Enampakkumisel ei lõpe servituudist tulenevad õigused, kui servituut oli seatud seadusest tuleneva servituudi seadmise õiguse alusel. (TMS § 158, 176)
MAJANDAMISKULUDEST
Vastavalt 01.01.2018 jõustunud korteriomandi- ja korteriühistuseaduse § 43 lõikele 2 korteriomandi võõrandamisel täitemenetluses ei vastuta selle omandaja korteriühistu ees käendajana võõrandaja korteriomandist tulenevate sissenõutavaks muutunud kohustuste eest.
NB! Kohustus tasuda kommunaalteenuste arved läheb enampakkumise võitjale üle pakkumise parimaks tunnistamise päevast (TMS § 155).
ÜÜRI- VÕI RENDILEPINGUD
Ostja võib üüri- või rendilepingu üles öelda võlaõigusseaduse §-s 323 ettenähtud tingimustel ja tähtaja jooksul. Ostja ei või üüri- või rendilepingut üles öelda, kui kinnistusraamatusse on kantud märge võlaõigusseaduse § 324 kohaselt ja märget ei saa kinnistusraamatust järjekoha tõttu kustutada. (TMS § 161)
ENAMPAKKUMISE PEATUMINE KATKESTUSE TÕTTU
Kui enampakkumise lõpu ajal esineb oksjonikeskkonnas katkestus, peatub enampakkumine katkestuse ajaks ja jätkub pärast katkestuse lõppemist. Enampakkumise lõpu aeg lükkub katkestuse aja võrra edasi. (TMS § 991)
ENAMPAKKUMISE KEHTETUKS TUNNISTAMINE
Enampakkumise akti kättetoimetamisest alates 30 päeva jooksul võib täitemenetluse osaline esitada kohtule hagi enampakkumise kehtetuks tunnistamiseks, kui vara on müüdud isikule, kellel ei olnud õigust seda osta, või kui enampakkumine toimus tühise arestimise alusel või rikuti teisiti enampakkumise olulisi tingimusi. (TMS § 223)
Vara soetamisel ühisomandisse on vajalik esitada abikaasa allkirjastatud nõusolek enampakkumise korraldajale enampakkumise lõppemise päevale järgneval päeval.
Täitemenetluse seadustiku § 93 lg 6 kohaselt pikendab enampakkumise korraldaja ostja taotlusel ostuhinna tasumise tähtaega täiendavalt 15 päeva võrra. Tasumise tähtaja pikendamiseks tuleb enampakkumise korraldajale esitada avaldus enne esialgse tähtaja möödumist.
Elektrooniline enampakkumine lõpeb enampakkumise kuulutuses märgitud ajal. Kui pikenemise intervalli jooksul tehakse enne enampakkumise lõpu aega uus pakkumine, lükkub enampakkumise lõpp pikenemise intervalli võrra edasi ja enampakkumine kestab seni, kuni pakkumisi tehakse. Kui pikenenud lõpu korral ei ole enampakkumine lõppenud varem, lõpeb enampakkumine 120 tunni möödumisel kuulutuses märgitud enampakkumise lõpu ajast.